Vrijstaande woning met dubbele garage op uitstekende locatie.
Dit vrijstaande woonhuis beschikt over een dubbele garage, berging en overkapping voor het stallen van bijvoorbeeld een boottrailer en is gelegen op een goede stand, op loopafstand van het winkelcentrum en nabij openbaar vervoer zoals het trein- en busstation.
In de directe omgeving bevinden zich diverse voorzieningen, waaronder scholen, sportfaciliteiten en winkels zoals een supermarkt, bakker, slager en drogist. Alles is gemakkelijk bereikbaar te voet of per fiets. Voor natuurliefhebbers liggen de prachtige wandel- en natuurgebieden De Houtwiel en It Bûtefjild op korte afstand, ideaal voor ontspanning en recreatie.
Indeling van de woning
Begane grond
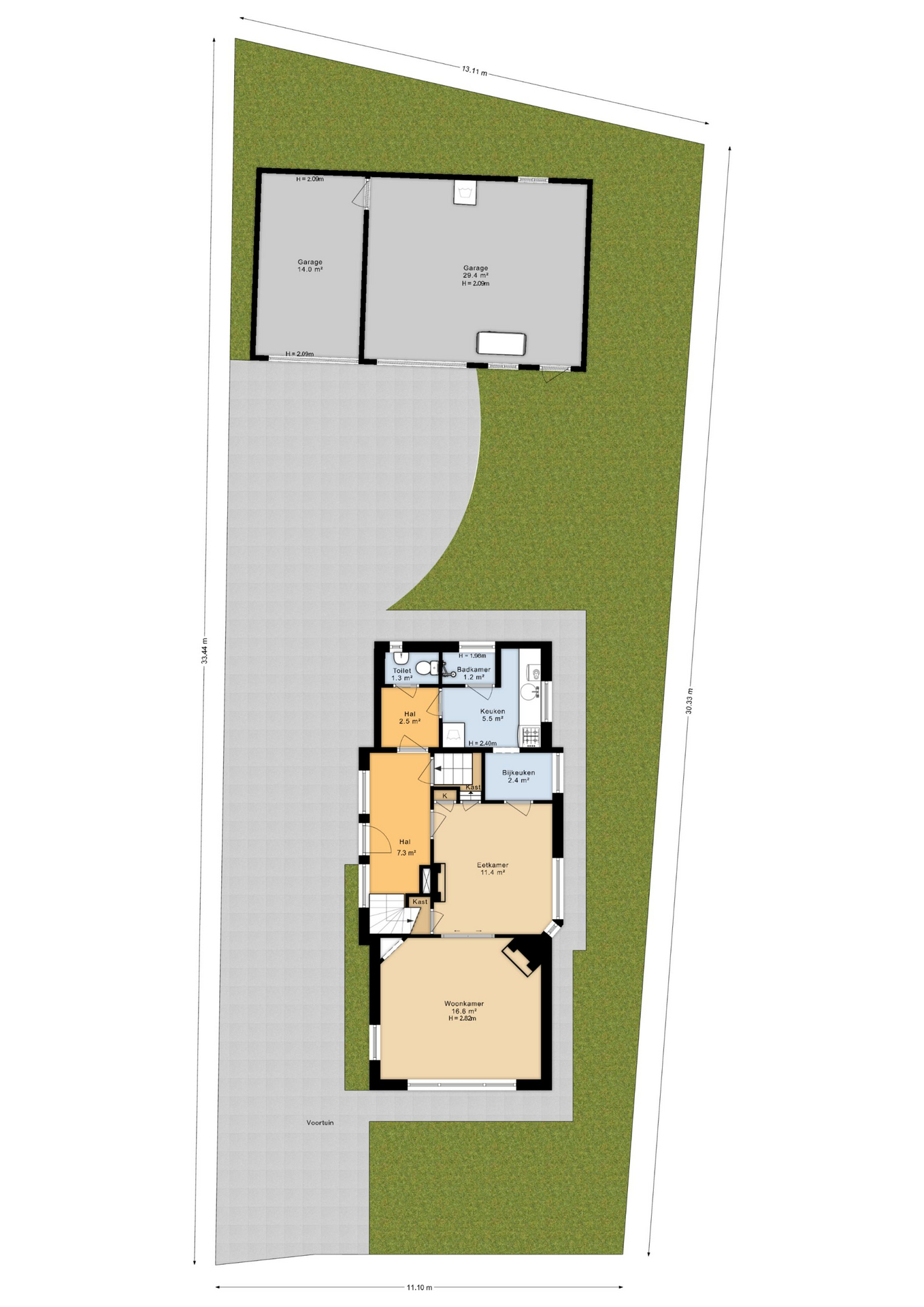
Via de zijentree komt u binnen in een ruime hal met trapopgang naar de eerste verdieping. Aan de voorzijde van de woning bevindt zich een lichte sfeervolle woonkamer. De eetkamer, voorzien van praktische kastruimte, biedt toegang tot de bijkeuken. Vanuit de hal bereik je de kelder, en via een tussenhal kom je bij het toilet, de keuken en de badkamer.
Eerste verdieping: Overloop, twee slaapkamers met bergruimte. Via een luik op de achterste slaapkamer is de vliering bereikbaar.
Achter de woning ligt een beschutte tuin waar je in alle rust kunt genieten van het buitenleven.
Kenmerken:
– Vrijstaand woonhuis
– Dubbele garage, berging en overkapping
– Recent geschilderd (2023)
– Winkels, openbaar vervoer en voorzieningen op loopafstand
– Nabij natuurgebieden













