Vrijstaand woonhuis met garage in kindvriendelijke woonwijk.
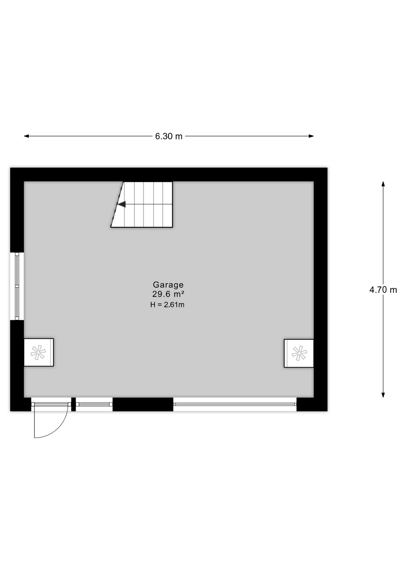
Aan een rustige straat staat deze goed onderhouden vrijstaande woning uit 1997. De woning beschikt over een badkamer op de begane grond en een garage met kap, wat zorgt voor extra ruimte en gebruiksgemak. Door de jaren heen is het huis met zorg gemoderniseerd, waardoor het een comfortabele en instapklare woning is geworden.
In 2019 is de keuken vernieuwd en is de meterkast uitgebreid. In 2024 zijn er 12 zonnepanelen geplaatst, wat bijdraagt aan een lagere energierekening. De woning beschikt over energielabel B.
Een ideale gezinswoning met volop ruimte, zowel binnen als buiten!
Indeling woning
Begane grond: Via de zijentree kom je binnen in de hal. Aan de rechterzijde bevindt zich het toilet met fonteintje. De badkamer is voorzien van een wastafel, designradiator en een douchehoek. Aan het einde van de hal bevindt zich de bijkeuken met witgoedaansluiting en een praktische stortbak.
De woonkamer ligt aan de voorzijde van de woning en biedt een gezellige leefruimte. De moderne open keuken is vernieuwd in 2019 en uitgerust met diverse inbouwapparatuur, waaronder een inductieplaat, combi-oven/magnetron en koelkast. De Quooker is circa drie jaar oud. Vanuit de keuken geven de terrasdeuren toegang tot het terras en de tuin.
Het eetgedeelte bevindt zich naast de keuken en is ook direct bereikbaar vanuit de hal.
Eerste verdieping: Ruime overloop met toegang tot vier slaapkamers. Daarnaast is er nog bergruimte aanwezig.
Op de tweede verdieping bevindt zich een vliering, bereikbaar via een vlizotrap. Ideaal voor extra bergruimte.
Bijzonderheden:
– Voorzien van zonnepanelen – duurzaam en energiebesparend
– Energielabel B – comfortabel wonen met een gunstig energieverbruik
– Moderne keukenopstelling uit 2019 – eigentijds en functioneel ingericht
– Quooker (circa 3 jaar oud) – direct kokend water, ideaal voor dagelijks gebruik
Omgeving:
Nijega is een karakteristiek streekdorp in de gemeente Smallingerland, gelegen tussen Oudega (ca. 3,5 km) en Opeinde (ca. 2 km). Het dorp ligt op slechts 700 meter van de autoweg N31 (Wâldwei), waardoor steden als Drachten en Leeuwarden snel en gemakkelijk bereikbaar zijn.
De busverbinding langs de N31 zorgt voor een goede aansluiting op het openbaar vervoer. Voorzieningen zoals een basisschool, snackbar, huisarts, Spar supermarkt, slagerij, bakker, tuincentrum en een wokrestaurant zijn te vinden in de nabijgelegen dorpen Oudega en Opeinde.
Voor uitgebreidere winkelmogelijkheden ligt het wijkwinkelcentrum Noorderpoort in Drachten op circa 5,5 km afstand. Hier vindt u een breed aanbod aan winkels voor uw dagelijkse boodschappen en andere voorzieningen.














