Moderne Twee-onder-een-kapwoning met ruimte en comfort in Burgum!
Welkom in Mooi Burgum, een prachtige nieuwbouwwijk waar modern wonen, ruimte en rust samenkomen. In dit plan wordt deze royale twee-onder-een-kapwoning gerealiseerd: een woning die eigentijds design combineert met optimaal wooncomfort. De woning wordt voorzien van diverse waardevolle meerwerkopties die al zijn gekozen, waardoor u profiteert van een extra luxe en compleet uitgevoerd nieuwbouwhuis. Omdat de woning zich nog in de realisatiefase bevindt, is bezichtigen op locatie niet mogelijk. Wij lichten de woning en de gemaakte keuzes graag uitgebreid toe tijdens een gesprek op ons kantoor.
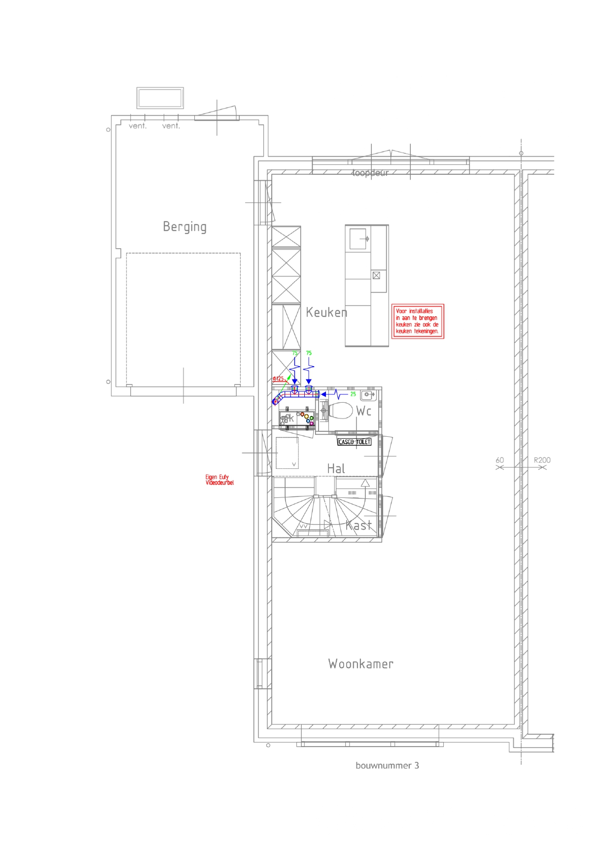
Deze woning wordt standaard uitgerust met een luchtwater-warmtepomp en vloerverwarming op de begane grond en verdiepingen. In plaats van 8 zonnepanelen is door koperskeuze gekozen voor een uitbreiding naar maar liefst 12 zonnepanelen. Verder beschikt de woning over een achteruitbouw van 2,08 meter, dubbele tuindeuren met zijlichten, draaikiepramen, een trapkast, een verzwaarde 55-liter boiler en een buitenkraan op de achtergevel.
De woning
Ruime woonkamer met open keuken. Door de woninguitbreiding van 2,08 meter aan de achterzijde ontstaat een royale en lichte leefruimte. De dubbele tuindeuren met zijlichten zorgen voor een prachtige verbinding met de tuin.
Tussen de hal en de woonkamer is gekozen voor een luxe zwarte deur met brons getint glas, wat de woning een moderne en hoogwaardige uitstraling geeft. Daarnaast zijn er LED-spots met dimmerfunctie aangebracht, waardoor u de sfeer volledig naar wens kunt bepalen.
De keuken is reeds uitgekozen en wordt in de brochure uitgebreid toegelicht. De woning wordt echter zonder geplaatste keuken opgeleverd. De keuken wordt dus wel meegeleverd, maar pas ná oplevering geplaatst. Eventueel zijn er nog aanpassingen te doen aan de keuken. Neem daarom snel contact met ons op om dit te bespreken.
Op de eerste verdieping bevinden zich drie volwaardige slaapkamers, voorzien van draaikiepramen. Verder is er op de eerste verdieping een ruimte voor de badkamer aanwezig. Het standaard tegelwerk en sanitair in zowel de badkamer als het toilet op de begane grond is vervallen, zodat u deze ruimtes volledig naar eigen stijl kunt realiseren. De aansluitpunten zijn voorbereid volgens tekening. Het badkamerraam is uitgevoerd met matglas voor extra privacy.
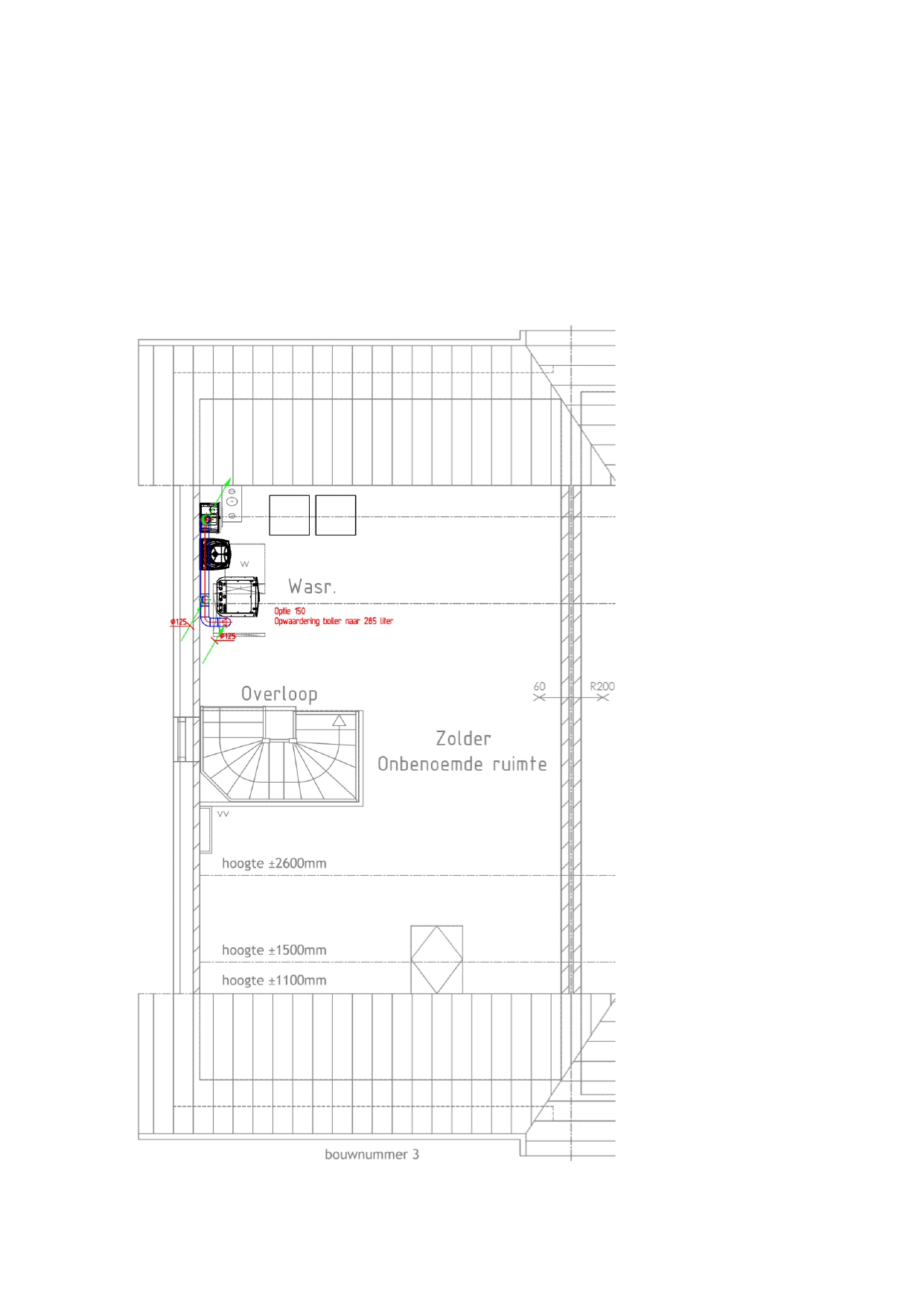
De tweede verdieping is middels een vaste trap bereikbaar. Deze ruimte is onafgewerkt.
Praktische details en extra comfort
– De woning is voorzien van een trapkast voor extra bergruimte.
– Tussen de woning en de berging is een tussendeur met 3-puntssluiting geplaatst, zodat de berging/garage direct vanuit binnen toegankelijk is.
– Stompe hardhouten binnendeuren, die zorgen voor een rustige, luxe uitstraling
– LED-spots met dimfunctie (zoals hierboven genoemd)
– Waterontharder
Afbouw & binnenwerk (zie ook technische omschrijving)
De woning wordt binnen grotendeels casco opgeleverd, waardoor u de vrijheid heeft deze volledig naar eigen smaak af te werken.
Dit houdt in:
– Binnenwanden worden behangklaar opgeleverd
– Plafonds op begane grond en verdieping worden voorzien van fijn spuitwerk
– Alle verdiepingen worden uitgevoerd met een cementdekvloer, zonder vloerafwerking of plinten
– De kap en knieschotten op zolder blijven onafgewerkt
– De binnenzijde van kozijnen en trappen zijn voorzien van een grondlaag (afwerking door koper)
– Sanitair en tegelwerk zijn vervallen en geheel door koper te realiseren
– Daarnaast zijn diverse luxe afbouwopties al toegevoegd, waaronder:
– Luxe binnendeur Kuin 115
– RVS A hang- en sluitwerk
– Model A balusters, hekwerken en leuningen
– Vensterbanken in uitvoering Polare M1
Energiezuinig en duurzaam
Deze woning voldoet aan de nieuwste duurzaamheidsnormen en is uitgerust met een warmtepomp, uitstekende isolatie, vloerverwarming en 12 zonnepanelen. Ook de elektrische installatie en vloerverwarming zijn al aangepast op de gekozen keukenopstelling.
Buitenruimte & parkeren
De woning beschikt over een ruime oprit met parkeergelegenheid op eigen terrein.
De stenen aangebouwde berging/garage is via de binnendeur bereikbaar.
De tuin wordt opgeleverd met uitgekomen grond en geëgaliseerd, inclusief een tijdelijke oprit en looppad naar de voordeur. Na oplevering kan de tuin geheel naar eigen wens worden ingericht.
De woning bevindt zich momenteel in de realisatiefase. Het betreft een nieuwbouwwoning die naar verwachting in het tweede kwartaal van 2026 wordt opgeleverd en eerst wordt overgedragen aan de huidige eigenaren. Na deze juridische levering kan de eigendom aansluitend worden overgedragen aan de nieuwe koper.
Omdat de woning op dat moment als bestaande bouw wordt aangemerkt, vindt de overdracht plaats kosten koper.
Interesse? Neem gerust contact met ons op voor een uitgebreide toelichting op deze woning. Wij nodigen u graag uit voor een gesprek op ons kantoor.
Het vermelde woonoppervlak en de inhoud zijn indicatief en gebaseerd op de beschikbare bouwtekeningen en de gekozen woninguitbreiding. Hieraan kunnen geen rechten worden ontleend.









