Royaal halfvrijstaand woonhuis met garage, carport en energielabel A!
Ben je op zoek naar een ruime, comfortabele en energiezuinige woning? Dan is deze royale halfvrijstaande woning met aangebouwde stenen garage en carport precies wat je zoekt! De woning is volledig gasloos en uitstekend geïsoleerd, wat zorgt voor een duurzaam en aangenaam woonklimaat.
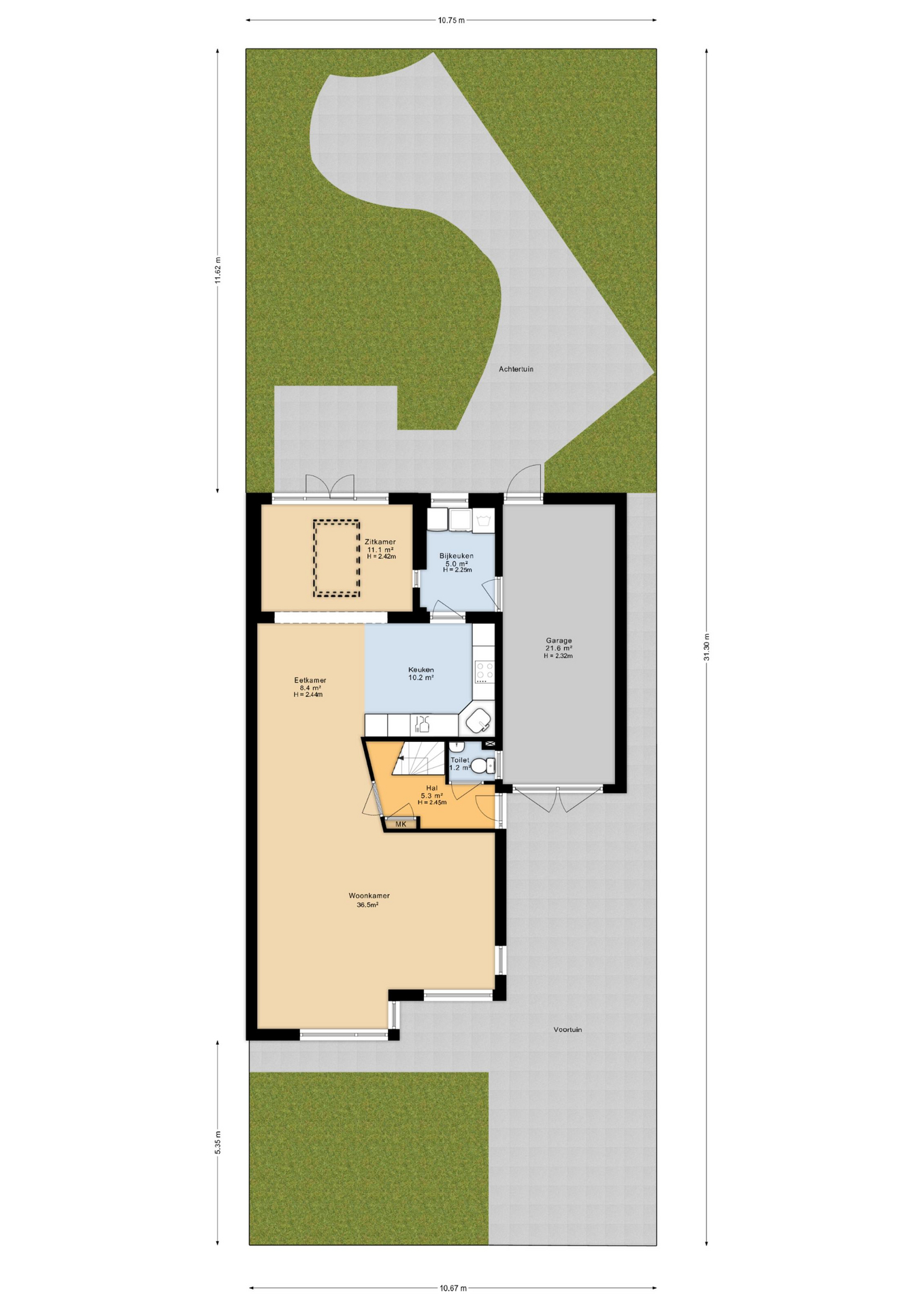
Indeling van de woning als volgt:
Begane grond: Via de zijentree kom je in de hal met meterkast, toilet met fonteintje en de trap naar de verdieping. De royale woonkamer met eetkamer biedt voldoende leefruimte. Daarnaast is er een aparte zitkamer met openslaande deuren naar de tuin – ideaal voor een rustige leeshoek of speelkamer. De keuken in hoekopstelling is voorzien van diverse inbouwapparatuur waaronder een kookplaat, oven, koel-vriescombinatie en vaatwasser. Aansluitend vind je de bijkeuken met witgoed aansluitingen en toegang tot de garage.
Eerste verdieping: Op de overloop bevindt zich een bergkast. Er zijn drie slaapkamers waarvan de grootste beschikt over een balkon. De badkamer is uitgerust met een ligbad, douche, wastafelmeubel en toilet.
Tweede verdieping: Via een vaste trap bereik je de zolderverdieping. Hier is een vierde slaapkamer met wastafel en extra bergruimte.
Achter de woning ligt een ruime, beschutte tuin met meerdere terrassen.
Kenmerken:
– Energielabel A
– Volledig elektrische warmtepomp
– Recent geschilderd (2023)
– Waterontharder
– 4 slaapkamers
Het dorp Burgum is centraal gelegen in de driehoek Leeuwarden, Drachten en Dokkum. Het dorp beschikt over alle mogelijke voorzieningen zoals: scholen, openbaar vervoer, horeca, diverse winkels en sportvoorzieningen, overdekt zwembad en bibliotheek. Het is een dorp met prima uitvalswegen zowel per boot via het kanaal als per auto via de nabij gelegen Centrale As en de A7.










