Op zoek naar een ruime hoekwoning in Noardburgum? Recent vernieuwd! In 2023 zijn zowel de voor- als achterdeur, evenals alle kozijnen, volledig vervangen door onderhoudsarm kunststof. In 2024 is de badkamer vernieuwd en is de inbouwapparatuur in de keuken vervangen. Deze vernieuwingen dragen bij aan het comfort van de woning,
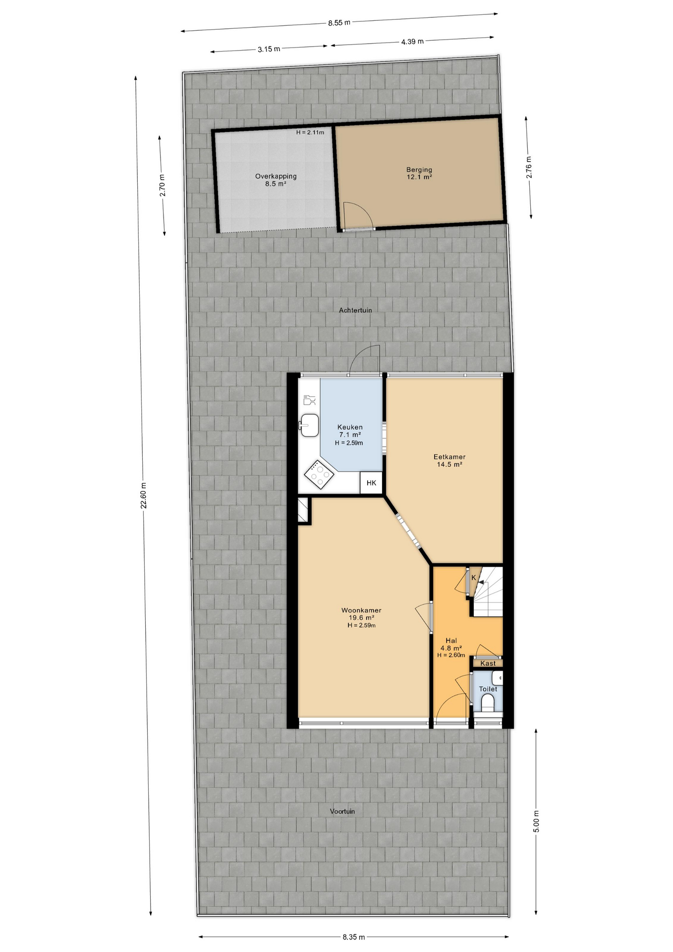
Achter de woning bevindt zich een stenen berging en een gezellige overkapping waar je heerlijk kunt zitten.
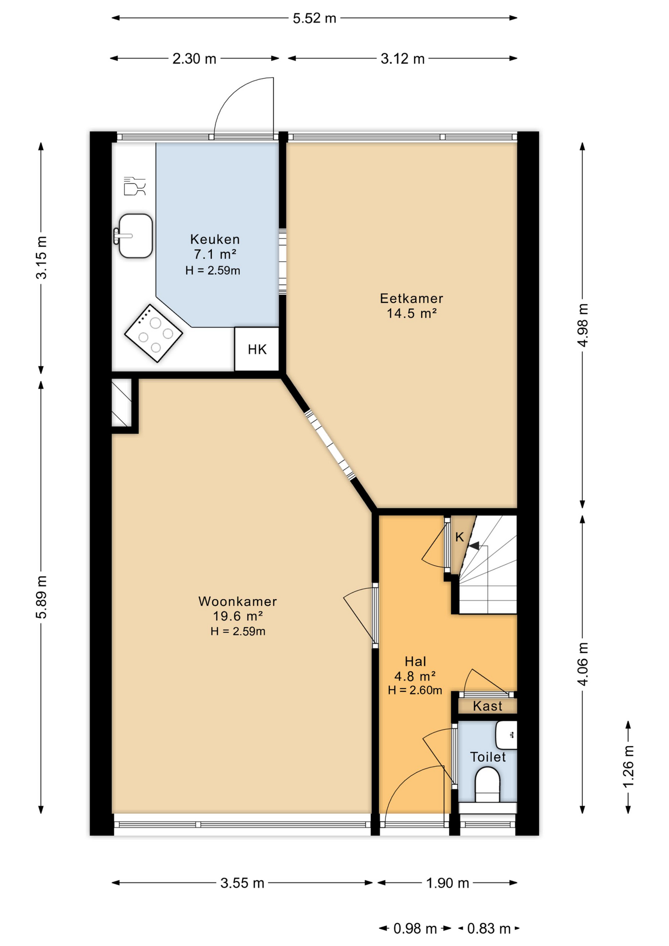
Indeling begane grond:
Entree/hal met meterkast, toilet en trapopgang naar verdieping. Lichte woonkamer met eetgedeelte en een halfopen keuken, voorzien van moderne inbouwapparatuur (vernieuwd in 2024 en 2025) waaronder een kokendwaterkraan. Vanuit de keuken is er directe toegang tot het terras en de tuin.
Eerste verdieping: Overloop met drie slaapkamers. De badkamer is recent vernieuwd en eigentijds ingericht met een dubbel wastafelmeubel, toilet, designradiator en ruime (stort)douche.
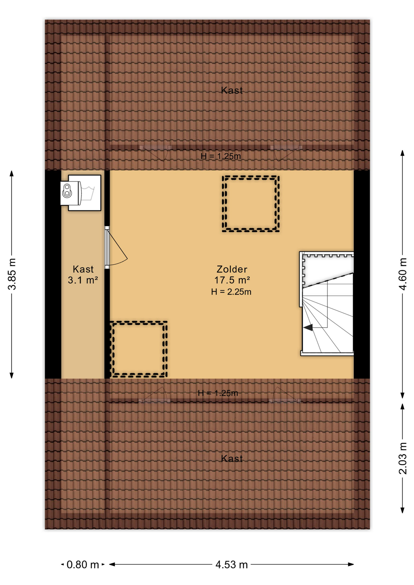
Tweede verdieping: Via een vaste trap bereikbaar. Op deze verdieping bevindt zich een praktische bergruimte met de CV-opstelling en aansluiting voor de wasmachine. Daarnaast is er een prachtige, ruime zolderkamer die zich uitstekend leent als extra slaapkamer, werkkamer of hobbyruimte.
Bijzonderheden:
– Energielabel C
– Zonnepanelen
– Waterontharder
– Mechanische ventilatie systeem vernieuwd in 2025
– Nieuwe Cv-installatie (2022)
– Nieuwe inbouwapparatuur in de keuken
– Badkamer vernieuwd
In het dorp vind je o.a. een Klompenmakerij en Klompenmuseum, een MFC, diverse sportverenigingen, een supermarkt, een kledingzaak, alsmede een huisartsenpraktijk. Op korte afstand ligt jachthaven Zwartkruis. Daar vandaan vaar je zo richting Dokkum of naar het Bergumermeer, waar je binnen 10 minuten bent, en van daaruit door richting Drachten of via het Prinses Margrietkanaal richting Leeuwarden of Groningen.












