Op een rustige locatie gelegen 2-onder-1-kapwoning met aangebouwde garage. Deze, vanaf het bouwjaar, geïsoleerde woning uit 1984 beschikt over vier slaapkamers, een L-vormige woonkamer en een praktische indeling met volop bergruimte.
Indeling
Begane grond
Via de entree/hal met toilet, meterkast en trapopgang kom je binnen. De L-vormige woonkamer van circa 35 m² is licht en ruim en staat via de schuifpui in directe verbinding met de achtertuin. De keuken is o.a. voorzien van een inductiekookplaat en sluit aan op de praktische bijkeuken met witgoedaansluitingen. Vanuit hier is de garage bereikbaar, voorzien van een elektrische garagedeur.
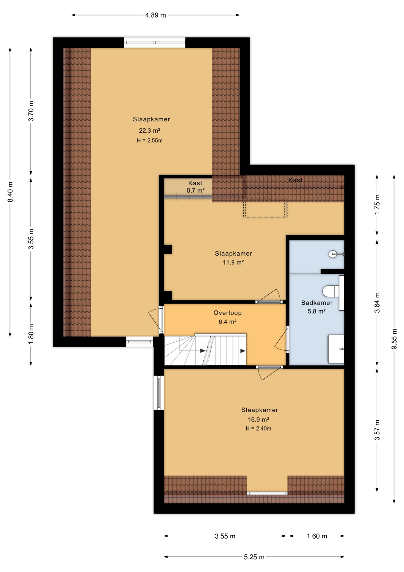
Eerste verdieping
De overloop geeft toegang tot drie slaapkamers. De badkamer is ingericht met douche, toilet en wastafelmeubel.
Tweede verdieping
Via een vaste trap bereik je de tweede verdieping met een ruime overloop en een vierde slaapkamer van circa 10 m². Achter de knieschotten is extra bergruimte aanwezig.
Vliering
Kleine bergruimte bereikbaar met losstaande trap.
Buitenruimte
De achtertuin is gesitueerd op het zuiden, waardoor je in de zomer grotendeels kan genieten van de zon. Achter op het perceel staat nog een schuurtje.
Bijzonderheden
– Bouwjaar 1984
– Aangebouwde garage met elektrische garagedeur
– Vier slaapkamers
– L-vormige woonkamer met schuifpui
– Bijkeuken met witgoedaansluitingen
– Vaste trap naar tweede verdieping
Ligging
De woning ligt op korte afstand van diverse voorzieningen. In het dorp zijn onder andere een slager, bakker, groenteboer, supermarkt, scholen, horeca en een openluchtzwembad aanwezig.
Leeuwarden en Dokkum zijn goed bereikbaar en liggen op respectievelijk circa 10 en 15 autominuten afstand.













